HeaderIcon
  1. Agent Logo

Explore by Metro

  • Atlanta
  • Baltimore
  • Boston
  • Bronx
  • Brooklyn
  • Chicago
  • Los Angeles
  • Manhattan
  • Miami
  • Nashville
  • Orlando
  • Philadelphia
  • Phoenix
  • Queens
  • San Diego
  • San Jose
  • Tampa
  • Washington
HeaderIcon

Explore By Metro

  • Atlanta
  • Baltimore
  • Boston
  • Bronx
  • Brooklyn
  • Chicago
  • Los Angeles
  • Manhattan
  • Miami
  • Nashville
  • Orlando
  • Philadelphia
  • Phoenix
  • Queens
  • San Diego
  • San Jose
  • Tampa
  • Washington
leftArrowBack to Search
OverviewAmenities & PoliciesFinancialsNeighborhood
Add to favoritesAdd to favorites (hover)
Save
  1. Home
  2. /Winter Park, FL
  3. /5130 - 5130 LAZY OAKS DRIVE
leftArrow
Add to favoritesAdd to favorites (hover)
$245,000est. $1,239 MortgageInfo icon

5130- 5130 LAZY OAKS DRIVE, WINTER PARK, FL 32792

BEDS

beds

2

BATHS

baths

2

PARKING

parking

-

SQFT

sqft
1008

Description

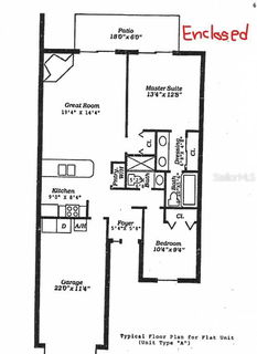
Low HOA!!! Spacious 2-bedroom unit offering 1,008 sq ft plus a 16x8 enclosed Florida room and a one-car garage, presenting a great opportunity for an investor or buyer ready to add value. The unit has been professionally cleaned, and following a water heater failure, ServPro inspected and addressed the area—no severe damage reported. As a result, baseboards have been removed throughout, and carpet has been removed from both bedrooms, leaving bare concrete and a blank slate for new flooring. The home features vaulted ceilings in the living and dining areas, a large welcoming foyer, and a functional kitchen with pantry and dual lazy Susan cabinets. Major components include a 2023 roof, 2025 water heater,2010 A/C, poly piping, and a Gould-brand electrical panel. HOA covers roof, exterior maintenance, termite bond, and pest control; buyer approval is required. Recent comparable sales support strong potential—bring your vision and make this one your own.

Description

Low HOA!!! Spacious 2-bedroom unit offering 1,008 sq ft plus a 16x8 enclosed Florida room and a one-car garage, presenting a great opportunity for an investor or buyer ready to add value. The unit has been professionally cleaned, and following a water heater failure, ServPro inspected and addressed the area—no severe damage reported. As a result, baseboards have been removed throughout, and carpet has been removed from both bedrooms, leaving bare concrete and a blank slate for new flooring. The home features vaulted ceilings in the living and dining areas, a large welcoming foyer, and a functional kitchen with pantry and dual lazy Susan cabinets. Major components include a 2023 roof, 2025 water heater,2010 A/C, poly piping, and a Gould-brand electrical panel. HOA covers roof, exterior maintenance, termite bond, and pest control; buyer approval is required. Recent comparable sales support strong potential—bring your vision and make this one your own.
listing image
listing image 2
listing image 3
5130 -
$245,000
est. $1,238.85 MortgageInfo icon

5130 -

5130 LAZY OAKS DRIVE #5130, WINTER PARK, FL 32792

BEDS

beds

2

BATHS

baths

2

PARKING

parking

-

SQFT

sqft

1,008

Description

Low HOA!!! Spacious 2-bedroom unit offering 1,008 sq ft plus a 16x8 enclosed Florida room and a one-car garage, presenting a great opportunity for an investor or buyer ready to add value. The unit has been professionally cleaned, and following a water heater failure, ServPro inspected and addressed the area—no severe damage reported. As a result, baseboards have been removed throughout, and carpet has been removed from both bedrooms, leaving bare concrete and a blank slate for new flooring. The home features vaulted ceilings in the living and dining areas, a large welcoming foyer, and a functional kitchen with pantry and dual lazy Susan cabinets. Major components include a 2023 roof, 2025 water heater,2010 A/C, poly piping, and a Gould-brand electrical panel. HOA covers roof, exterior maintenance, termite bond, and pest control; buyer approval is required. Recent comparable sales support strong potential—bring your vision and make this one your own.

Description

Low HOA!!! Spacious 2-bedroom unit offering 1,008 sq ft plus a 16x8 enclosed Florida room and a one-car garage, presenting a great opportunity for an investor or buyer ready to add value. The unit has been professionally cleaned, and following a water heater failure, ServPro inspected and addressed the area—no severe damage reported. As a result, baseboards have been removed throughout, and carpet has been removed from both bedrooms, leaving bare concrete and a blank slate for new flooring. The home features vaulted ceilings in the living and dining areas, a large welcoming foyer, and a functional kitchen with pantry and dual lazy Susan cabinets. Major components include a 2023 roof, 2025 water heater,2010 A/C, poly piping, and a Gould-brand electrical panel. HOA covers roof, exterior maintenance, termite bond, and pest control; buyer approval is required. Recent comparable sales support strong potential—bring your vision and make this one your own.

Glen Gardens Estate Market Stats Last 12 months

LOCKER
Contact Us for Info

POSSESSION
Contact Us for Info
HOA FEESinfo
$277 /Monthly

OUTDOOR SPACE
Mailbox, Rai
TAXES
$749 (2024)

BUILDING AGE
44 Years
BASEMENT FEATURE
Contact Us for Info

PRICE PER SQFTinfo
$243

Market Stats

HOA FEESinfo
$277 /Monthly

OUTDOOR SPACE
Mailbox, Rai
TAXES
$749 (2024)

BUILDING AGE
44 Years
BASEMENT FEATURE
Contact Us for Info

PRICE PER SQFTinfo
$243

Amenities

Parking
Parking
-
Locker
Locker
Concierge
Concierge
-
Elevator(s)
Elevator(s)
-
Central AC
Central AC
Check Icon
Pool
Pool
-
Fitness Center
Fitness Center
-
Visitors Parking
Visitors Parking
-

Amenities

Unit
Parking GarageParking Garage
Building

Policies

Pet Allowed
Check
Pet Allowed Info icon
Check Icon
BBQ Permitted
BBQ Permitted
Sublet Allowed
Sublet Allowed
Short-term Rental Allowed
Short-term Rental Allowed

Unit Price History

DateMLSStatusPrice
Unit Price History for this Listing is not available

Unit Price History

Unit Price History for this Listing is not available

Monthly Payment Calculator

$1,656 / Monthly

All calculations are estimates and provided by HelloCondo.com
for informational purposes only. Actual amounts may vary.

DropDown
$1,656
Est.
Listing Price
Down Payment
Interest Rate
Terms
Listing Price
Down Payment
Interest Rate
Terms

Monthly Payment Calculator

$1,656
Est.
Listing Price
Down Payment
Interest Rate
Terms
Listing Price
Down Payment
Interest Rate
Terms
$1,656 / Monthly

All calculations are estimates and provided by HelloCondo.com for informational purposes only. Actual amounts may vary.

view source
DropDown

Monthly Payment Calculator

Mortgage calculator

Monthly Mortgage: $1,239
DropDown

The Neighborhood: WINTER PARK, FL

Get the HelloCondo Newsletter
Real-estate tips, insights, and market reports in your inbox.
Newsletter
  1. Home
  2. /Winter Park, FL
  3. /5130 - 5130 LAZY OAKS DRIVE
Nearby Cities
Mascotte

Buildings

2419 Gallery View Dr
2427 Gallery View Dr
2905 Antique Oaks Cir
2923 Antique Oaks Cir
2924 Antique Oaks Cir
2929 Antique Oaks Cir
2935 Antique Oaks Cir
2941 Antique Oaks Cir
2948 Antique Oaks Cir
3019 Antique Oaks Cir
3020 Antique Oaks Cir
3026 Antique Oaks Cir
3037 Antique Oaks Cir
3651 N Goldenrod Rd
3732 Idlebrook Cir
3748 Idlebrook Cir
3756 Idlebrook Cir
7309 Daniel Webster Dr
7429 Daniel Webster Dr
7453 Daniel Webster Dr

Neighborhoods

Audubon ParkAzalea ParkBay Hill
Bryn MawrClarconaClear LakeColonialtown SouthEast ParkEducation VillageFerndaleFoxmoorHarbour IsleHeathrowHighlandsHunters CreekNew MalibuOrwin ManorRowena GardensTuscawillaVista East

ZIP Codes

327573277332779
3280532807328163281932820328273282932830328323471434715347313473634753347583476934797

Community

Adair CondominiumsAlomaAloma Park
Altamonte HeightsAltamonte VillageAntigua BayArborview ParkAshford Park TownhomesAtha Urban Flats CondominiumsAtherton Park CondominiumsAzalea Lane CondominiumsBarclay Reserve TownhomesBaytree SectionBaytree VillageBiltmore TownhomesBona VistaBradford CoveBraewick at TuscawillaBranch TreeBrandywine Dubsdread
Hellocondo Logo
HelloCondo Is The #1 Condo Search Platform And Real Estate Recommendation Engine. Search, Find And Buy The Perfect Condo And Get Matched With The Best Agents. Finding A Condo Has Never Been So Easy.

HelloCondo is a division of HelloCasa, LLC

FacebookIconInstagramIconXIconRedditIcon

HelloCondo

Find A RealtorTerms of UsePrivacy PolicyCalifornia Privacy NoticeAccessibility PolicyCCPA Notice on CollectionDMCABrowseNYS Standard Operating ProcedureNYS Fair Housing Notice

Contact

LocationIcon
300 Galleria Pkwy SE, Suite 1500,
Atlanta, GA 30339
PhoneICon
(855) 625-0319
EmailIConhello@hellocondo.com
Contact Us

For Sale

Condos for saleTownhomes for sale
AgentIcon
LocationIcon

Julie's Realty, LLCYuliya "Julie" Sidorevskaya1700 79th Street CSWY STE#160,North Bay VIllage, FL, 33141

PhoneICon305-340-1857
EmailIConJulie@JuliesRealty.net
© HelloCondo 2026. All Rights Reserved.