




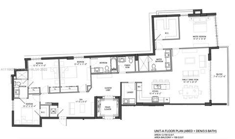
RARE TO FIND – Live in the spectacular boutique building SERENO RESIDENCES, north corner unit and waterfront views WITH 1 Boat Slip Max 45” | ** Click on Virtual Tour Link **| 4 BDR |1 DEN | 3 FULL Bath + ½ Bath | 2 Assigned Covered Parking Uper Level | Extra Big Storage | Elevator | BBQ Area| Pool |Kayaks | GYM | Bay Harbour Islands is a BEAUTIFUL hidden gem tucked behind Surfside and Bal Harbor Village, that is undergoing a major redevelopment | Known w...
| Date | Status | Price |
|---|---|---|
| Unit Price History for this Listing is not available | ||
Loading similar listings...
Julie's Realty, LLC
Yuliya "Julie" Sidorevskaya
1700 79th Street CSWY STE#160,
North Bay VIllage, FL, 33141