




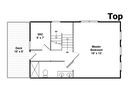
New Construction Town Houses currently being built in one of Boston's hottest neighborhoods! The Town Homes will offer a modern floor plan for today's lifestyles. With high ceilings, hardwood floors, amazing windows, gourmet kitchen, large peninsula, stainless steel, premium quartz, central air, 2nd Flr laundry and custom closets. Amazing master bedroom suite with spa bathroom, walk in closet, private balcony and fantastic city views. Plus, Bonus 500+ sq f...
| Date | Status | Price |
|---|---|---|
| Nov 2018 MLS#: 72347436 | Closed | $ 985,000 |
Loading similar listings...